You are on eastlansinginfo.org, ELi's old domain, which is now an archive of news (as of early April, 2020). If you are looking for the latest news, go to eastlansinginfo.news and update your bookmarks accordingly!
You are on eastlansinginfo.org, ELi's old domain, which is now an archive of news (as of early April, 2020). If you are looking for the latest news, go to eastlansinginfo.news and update your bookmarks accordingly!

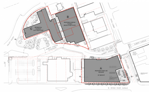
The public got its first official look at the proposed new site plan for the Park District’s redevelopment at last Wednesday night’s East Lansing Planning Commission meeting (on October 12, 2016). The plans call for three large new structures as well as realignment of streets in the area.
At the end of August, we reported some of the preliminary renderings of the design for “Building A,” the twelve-story apartment and hotel building that, if the site plan is accepted, will be built on the blighted corner of Abbot Road and Grand River Avenue.
The plan, submitted to the Planning Commission in a few weeks ago, also calls for a seven-story parking garage, “Building B,” which will be located on the east side of what is now Evergreen Avenue, plus an eight-story apartment building, “Building C,” which will be approximately located where the recently-demolished Evergreen Arms apartments once stood.

There are some differences to the structure of Building A between the most recent site plan and the previews released by ELi in August. Architect Jay Longo from the firm Solomon Cordwell Buenz explained that the height of the building where it fronts Grand River Avenue was reduced from twelve stories to ten stories and a green roof was added to the top of that wing of the building.
The public plaza that developer Convexity Properties’ Design Director Chris Oakley described to ELi as a “civic gesture” has remained part of the design. However, Oakley said during the Planning Commission meeting last Wednesday that if restaurants were located on the retail floor, they would also be offered use of parts of the plaza for private outdoor dining.

Above: A view of Building A from the southeast, street view, showing the plaza.
Building A is expected to feature a hotel as well as apartments targeted at a mixed market. The southwest wing of the building, which fronts Grand River Avenue, will be residential, and the north wing, standing two stories taller, will be part of the hotel.
A grocery store, which many residents as well as members of the Planning Commission have expressed a strong desire for, is still being considered for the ground floor retail space. A ground-floor restaurant is also in the cards. The plans include a public rooftop bar and restaurant, as shown near the upper-right of the image below:

Above: Building A as seen from a southeast aerial view, with the intersection of Abbot Road and Grand River Avenue at the lower-right of the image.
There will be a parking lot located under Building A, but it will be aimed primarily at hotel guests. Parking for the apartment residents will be supplied by a separate parking structure, Building B, which will have room for 597 vehicles.
That parking garage, which will lie directly adjacent to the apartments of Building C, is intended to be public, usable by building residents or the general public. The current plan appears to call for the City of East Lansing to finance, own, operate, and maintain that new parking ramp.

Above: A map showing the area with reconfigured streets and the three proposed buildings.
The parking garage is not just important so that future residents have a place to park, but also because the development will eliminate parking now used by the Peoples Church and nearby businesses. If you compare the architect’s map above with the aerial map below, you can see that the parking lot behind Peoples Church, as well as some street parking, will be eliminated to make way for new buildings and private drives.
An additional issue is that DTN’s neighboring 300 Grand project, to the west of Biggby Coffee, was granted an exemption of their full parking requirement, and reportedly are currently short of onsite parking space for their residents.

Above: An aerial view showing in red the two areas that would contain Buildings A, B, and C. The two buildings shown on the west side of Evergreen (the former Evergreen Arms apartments) have already been demolished.
Many Planning Commission members were happy with the site plan presented for Building A, however, unresolved issues remain for the Park District project as a whole. These include traffic, parking, the lack of full accommodation of bicycle and pedestrian traffic, and no plans for designated senior housing. Some commissioners also criticized Buildings B and C for being unattractive from various directions.
The current design of Building A calls for pull-up entry to the hotel on the west side of Abbot Road and entry to the hotel’s parking from the north side of Grand River Avenue. At present, left turns are not allowed onto Albert Avenue from Abbot Road traveling north from Grand River Avenue, all of which makes it effectively impossible for cars coming from the west to get directly to the building’s drop-off areas or parking areas.
Traffic arriving from the west will have to, at minimum, make a “Michigan left” on Grand River Avenue to loop back around or else be “routed to other cardinal points,” the developer admitted. On the diagram below, you can see how the turn-off into the hotel parking area (bottom left) can only be accessed when driving westbound on Grand River Avenue. You can also see that the drop-off spot for the hotel on Abbot Road is not really accessible from the south and west.
This would very possibly result in traffic being routed through the neighborhoods north and east of the Park District, a possibility that concerned the Commission.

Above: Map of the ground floor of Building A, showing entries and exits.
Some Commissioners, especially Chris Wolfe and Don Davis, expressed concerns about the width of the turning lane (too narrow) and the “awkward crossover” of traffic entering and exiting the underground garage from Grand River Avenue, which you can see in the diagram below. Traffic for the on-site garage would enter from westbound Grand River Avenue and exit northwards toward the realigned Albert Avenue, an intentional design on the part of the architect. According to the designers, the crossover of incoming and outgoing traffic in the on-site garage will be more manageable than suggested in this diagram.

Above: Map of the on-site parking structure, which is intended primarily for hotel guests.
The turning lane leading to the on-site parking area will be separated from the adjacent Peoples Church Memorial Garden by a divider. Originally this divider was going to consist of shrubbery planting, however, after discussion with the church, it has been upgraded to a five-foot brick wall.
At the Planning Commission meeting on Wednesday, Peoples Church representatives requested that the developer make the wall higher, raising it to eight feet, so that people visiting the garden will not be looking over the wall into a driveway. The garden is significantly higher than the driveway.
The delegation from the Church, including Senior Pastor Andrew Pomerville, requested that the developers respect the privacy of the Memorial Garden, where ceremonies are held and over 200 loved ones are interred. The Church representatives also raised concerns about whether the Church’s parking lot is adequately separated from Albert Avenue such that there will be little cut-through traffic.

Above: Peoples Church as seen from Grand River Avenue.
The plans for the parking garage, Building B, also raised some unresolved issues. Attorney David Pierson, representing the developer Convexity, is of the opinion that the quantity of parking required by City ordinance, which necessitated the seven-story structure, is excessive. However, as mentioned, Peoples Church and other groups have strongly requested that significant numbers of parking spots be added to the area. Years ago, the Church gave up two properties for the construction of a City parking lot which will now be lost to this development.
Building B’s proximity to the second apartment building (Building C) also prompted questions both from the Peoples Church delegation—who noted that many of their parishioners would have to take a long walk around both buildings in order to reach the church—and Alice Dreger, resident of the Oakwood neighborhood, just north of the project. (Disclosure: Dreger is ELi’s Publisher.) Dreger said that the narrow, canyon-like alley between the Building C and the garage appears unfriendly to walkers and bikers, especially at night, and doesn’t live up to the previous promise of some kind of welcoming path between the two.
Additionally, the height of those two buildings upset the co-owner of 404 Evergreen Avenue, Matt Hagan of Hagan Realty, whose property, he said at the meeting, will likely be placed in perpetual shade and will be adjacent to a tall, unattractive parking garage. He asked that the City at least to respect the required setback for the parking garage. (The property at 404 Evergreen Avenue features a three-story residential rental building.)
Until recently there has been talk of Building C possibly being a senior housing project (for people 55 years and older), however it is now drawn up as a standard mixed-market apartment building. Convexity attorney Pierson stated before the Commission that the developers do not believe there is a market for either senior housing, owner-occupied condos, or more office space in the East Lansing area, so the developer did not want to commit to restricting units in Building C to any of these uses.
Kathleen Boyle, a former City Councilmember who has contributed heavily to the effort to include senior housing in Park District redevelopment, countered that the City had conducted a survey of residents that showed significant interest—to the tune of 200 affirmative responses—in senior-specific apartments.
As ELi reported this week, the Planning Commission recently recommended amendments to City Ordinances 1384 and 1385, suggesting that the City not attempt to force developers to provide some percentage of senior housing and/or owner-occupied condo units. There will be a public hearing on these recommended ordinance amendments during the November 9 City Council meeting.
The site plan submitted by Convexity Properties has not yet been approved by the Planning Commission and is expected to undergo further revision before it is sent by the Planning Commission to City Council. The developer has been working closely with the Planning Department as well as Peoples Church and has also now scheduled a meeting with the Oakwood Neighborhood Association.
UPDATE on the project available here.
eastlansinginfo.org © 2013-2020 East Lansing Info