You are on eastlansinginfo.org, ELi's old domain, which is now an archive of news (as of early April, 2020). If you are looking for the latest news, go to eastlansinginfo.news and update your bookmarks accordingly!
You are on eastlansinginfo.org, ELi's old domain, which is now an archive of news (as of early April, 2020). If you are looking for the latest news, go to eastlansinginfo.news and update your bookmarks accordingly!

Above: Artist’s rendering of what the movie theaters with automated parking would look like.
Local developer Paul Vlahakis wants to build a major new redevelopment just west of Abbot Road, including a 12-screen movie theater, automated parking, and lots of apartments. And he wants to move fast.
Yesterday, at a committee meeting of East Lansing Downtown Development Authority (DDA), Vlahakis made public for the first time the outlines of a proposal for a large development including the site of the Dublin Square building on Abbot Road, which Vlahakis Companies owns. That brick building would be demolished and replaced as part of this plan.
If all goes as Vlahakis wishes, the project would also include land along Evergreen Avenue with student rental properties currently owned by the Downtown Development Authority (DDA), as shown on this map.

(For a larger version of this map, click here.)
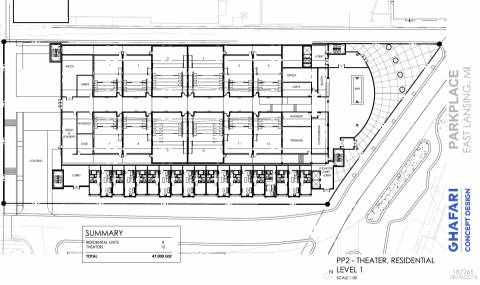
The new project, which Vlahakis is calling “Park Place,” includes two large buildings.
Along Evergreen Avenue at the current site of the DDA properties, the building being called Park Place II would hold a twelve-screen theater on the ground level, with “automated parking” above the theaters – a robotic parking technology which would be new to East Lansing. Above the parking, four floors of market-rate apartments are proposed. Apartments would also wrap around some sides of the building, starting on the ground level.

The building being called Park Place I would be 12-stories and be sited at the northwest corner of Abbot Road and Albert Avenue. It would include 12,000 square feet of retail space on the first floor, 25,000 square feet of office space on the second floor, market-rate rental apartments on floors 3 through 10, and for-sale condominiums, with balconies, on floors 11 and 12.

How this project would fit into downtown development:
As shown on the map above, this large proposed project would be located adjacent to what has been called the “Park District” redevelopment, for which the City Council adopted a site plan and Special Use Permit at its meeting on Tuesday. That project includes a 10-story hotel and a 12-story building at the now-vacant corner downtown.
Yesterday, Vlahakis used the public comment time at a noon meeting of the Downtown Development Authority (DDA) Project and Infrastructure Committee to present initial plans to the DDA members who are part of that committee. This presentation was not on the agenda.
Vlahakis said he was approaching the DDA now because “I’m sure you are currently engaged in conversation about what to do” with the DDA-owned properties on Evergreen Avenue. About $6.5 million in debt on those publicly-owned properties is coming due, and there is no plan currently for dealing with it.
As ELi has explained, those properties were purchased years ago for a redevelopment project that never came to pass. Now the properties are believed to be “under water” – worth less than is owed.
Vlahakis said to DDA Chair Peter Dewan after the meeting that he would like to begin construction soon – as soon as March 2019. He said it makes sense to plan construction of this project in conjunction with DWR/Convexity project, both because of the need to coordinate infrastructure work for things like sewers and to reduce the duration of “construction growing pains” in the west end of the downtown.
Both DRW/Convexity’s project and the envisioned Park Place projects are large. Together, they are twice the size of the Harbor Bay Center City District project currently underway in the core of East Lansing’s downtown. Both projects include buildings with large footprints and both would add 12-story buildings to the skyline of downtown East Lansing, as the Center City District project is also set to do.
This is not yet an actual application, and others might be sought:
Vlahakis told ELi that he has been in conversations for two or three months with Mayor Mark Meadows, City Manager George Lahanas, and City Planning and Economic Development staff, but he has not yet submitted an application for this project to the City. The drawings shared with the DDA do not constitute a site plan.
The application is the first formal step in any development project, after which staff prepares a report. The application and staff report are sent to the Planning Commission for a public hearing and consideration and recommendation from the Commission.
Vlahakis’ presentation to the DDA Committee comes at a time when the DDA is getting ready to deal with the Evergreen Avenue properties’ debt. The DDA may consider refinancing the bond on those properties (shown below) at its meeting on August 23.

Tom Fehrenbach, who does staff work for the DDA, said at the meeting that staff is still working with a financial adviser about the concept of a new bond and that he hoped it would be ready to discuss next week. Vlahakis told me he knew that the issue of refinancing the bond was on the DDA’s upcoming agenda.
In 2017, the DDA tried to work with DRW/Convexity to incorporate its Evergreen Avenue debt into the financing of a larger project with them that incorporated the DDA properties. DRW/Convexity’s current site plan does not include these DDA properties, however, so the DDA must now either refinance the bonds or try to pay them off some other way.
The DDA is considering opening up the redevelopment opportunity on its properties to all comers. The DDA Executive Committee, which also met yesterday, discussed a suggestion from Chair Dewan to convene a committee that would market the DDA properties and create a Request for Proposals (RFP) process to seek proposals that would meet goals that the City and the DDA have for this part of downtown.
Dewan suggested including various stakeholders in this committee, including a representative of the nearby Oakwood neighborhood. The Executive Committee, where this was discussed, met immediately before the Project and Infrastructure Committee that Vlahakis addressed.
DDA Chair Dewan told me he did not know in advance of the meetings that Vlahakis would present a proposal to the DDA. How to move forward with developing the DDA properties is expected to be on the DDA’s agenda next week.
Vlahakis’ partners on this proposal:
Vlahakis Companies is partnering on this proposed project with Royal Properties of Champaign, Illinois. Royal Properties has built student housing in Texas, Tennessee, Florida, Arizona, and Kentucky and non-student housing in Chicago and Florida.
Its website says that, “Royal Properties is a company with one purpose: to develop, own and manage multi-family student housing near four-year universities throughout the United States.” Its “current projects” page states: “Royal Properties continues to build high quality, state of the art projects in student housing while diversifying into other real estate ventures.”
Vlahakis is working with the Ghafari design company, which in 2017 bought out Design Concepts. That company partnered with local developer DTN in 2014 on an earlier iteration of a project on the Evergreen Avenue and Albert Avenue part of this project. Vlahakis said he chose to work with this firm because of its involvement in the public charettes about this area that were conducted at that time.
More details about the proposed buildings:
Vlahakis said repeatedly yesterday that the drawings are incomplete and “not set in stone.” He said he is trying to have full floor plans ready before the full DDA’s next meeting next week. Some elements are still “conceptual,” such as a pedestrian walkway across the alley between the two buildings, where the level of the walkway is not yet decided.
The Park Place I building on Abbot Road may include a restaurant and bar on the first floor. The building would have a drop-off space along Abbot Road and access to two levels of automated parking for 200 vehicles on the lower level. Vlahakis owns the Irish Pub in the Dublin Square building (shown below), and that may reopen in the proposed new building, although that is not finalized, according to Vlahakis.

Another restaurant is also a possibility. He suggested a few boutique retail spots, for a Starbucks or small clothing store, for example. No tenants are yet in place for the office space on the second floor. There would be separate elevators to the office floor, to the rental apartments on floors 3 through 10, and to the condos on floors 11 and 12.
This Abbot Road building would include studio, one-bedroom, and two-bedroom units, Vlahakis told me after the meeting. When I asked whether the rental units would be furnished, he said he had not given this a lot of thought, but some of the units might be furnished – at least with large pieces such as beds and a dining room table. He said this would avoid the need for moving larger furniture in and out and that it would be more convenient for tenants than renting furniture from another company.
Vlahakis said he believes there will be a market for the two top floors of condominiums because of the views from that height and also because development underway downtown will offer more activities for people living there. Large downtown redevelopment projects are required, under East Lansing’s Ordinance 1384, to have at least 25% of their housing units be for something other than housing likely to attract students – so they must include owner-occupied condominiums, low-income housing, or senior housing.
Vlahakis said two major theater groups have expressed interest in a theater in the Park Place II building on Evergreen Avenue. Twelve theaters appear in the current drawings (shown below), the maximum possible number in this space.

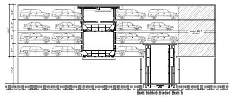
This building would have parking space for 424 cars plus another 120 spaces for vehicle “storage” for people who use their cars infrequently. The “storage” spaces would be in rows from which it would take longer to retrieve a vehicle. These spaces would be in four levels, although the elevations picture shows only two levels. (The parking system is discussed further below.) Above the parking levels, four floors of apartments are envisioned, built around a courtyard. The courtyard is needed so that all the apartments can have windows.
The design for this building has similarities with the one that Concept Design drew up for the DTN project on this site in 2014. The 2014 iteration had a parking ramp with 709 spaces on seven levels, with unspecified retail on part of the first floor and apartments above the ramp and wrapped around two sides of the building at the lower levels. The drawings Vlahakis brought are different in their inclusion of movie theaters and automated parking rather than a parking ramp.
Vlahakis told DDA members that he plans a green roof with “building amenities” on both buildings. He suggested that the roofs might be available for walking pets or just walking for exercise, given the large footprint of the buildings. Vlahakis told me that providing amenities on the roofs would mean that space inside the buildings that might otherwise be used for fitness or gathering space could be used instead for additional residential units.
How the “automated parking” system works:
Vlahakis presented the system of “automated parking” in both of the Park Place buildings as a significant aspect of this proposal.
This system is unmanned. Cars are left by their drivers in bays from which they are transported though a robotic system to a storage space. The cars are turned off throughout this process, so fumes do not collect in the structure. When the vehicle is to be retrieved, it is returned through the same system and rotated so it is facing out. A three-minute video shows how the system works.

Vlahakis said that he would work with Unitronics, which he described as the leader in this field, to design and build the automated parking system in the two buildings. In his vision, the system then would be sold to East Lansing to become part of the municipal parking system, from which the City would generate revenue.
Vlahakis said after the meeting that “conventional parking is a thing of the past.” He said that automated parking uses space much more efficiently than ramp parking; the parking levels are lower, and less space is needed horizontally because people are not driving their vehicles within the system. Also, Vlahakis said, it is a waste of time and gas for drivers to look for parking and park cars themselves in a ramp.
What’s next?
Because this Park Place proposal came as a surprise at the DDA committee meeting on Thursday, DDA members did not have the opportunity to prepare questions or reactions. There was limited discussion of the proposal, but more significant responses can be expected later.
Vlahakis also told the DDA Chair that he plans to come to the City at a later time with a proposal for another property he owns on Albert Avenue that houses El Azteco restaurant. (He later clarified that he has no foreseeable plans to redevelop that property.) Vlahakis said to Dewan after the DDA meeting, “Every big college town across the country is vertical. We’re just behind,” he said. “It won’t hurt student houses. Everything will be absorbed.”
The Downtown Development Authority will meet on Thursday, August 23 at noon. Like all meetings of City board meetings, people may speak during the time set aside for Public Comments. Written comments to the DDA may be sent at any time to Tom Fehrenbach of the Planning Department.
Nobody covers East Lansing development proposals like ELi. Click here to keep our work going.
Correction: In the following sentence, the word "Chair" was added after original publication. "Vlahakis also told the DDA Chair that he plans to come to the City at a later time with a proposal for another property he owns on Albert Avenue that houses El Azteco restaurant." We also added the parenthetical, at Vlahakis's request: "He later clarified that he has no foreseeable plans to redevelop that property."
eastlansinginfo.org © 2013-2020 East Lansing Info